GrosvenorRd Layout
GrosvenorRd Layout
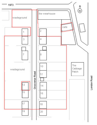
Dom, nice pics
but the Cabbage Patch is in the wrong place -- it should be top left (somewhere near the "A" of "Attachment")
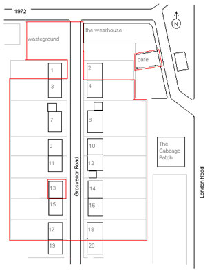
early on (1972/3) i'm pretty sure No 19 was squatted by Jack and others, before they moved into No 17 -- "The first house we moved into completely ran down... Then the guy* running the support group handed us the keys to the house next door, the one you saw in the paper which said the squatters take over. And he said, move; you're in a bad house. Move into this nice house." (*i think Jack told me it was Tony Pattison who gave him the keys)
incidently i came across Tony again a couple of times -- indirectly in the early 80s via his brother who was living up in Lincolnshire, and directly in 1991, when we were both working at CLHAS, a Central London housing and resettlement coop -- but he developed serious eye problems and was facing the possibility of blindness last i heard, which is somewhat ironic as he was in the process of writing (or preparing to write) a book on Turlough O'Carolan, the last of the great traditional travelling Irish harpist/composers, who died in 1738 (and who was also blind)
early on (1972/3) i'm pretty sure No 19 was squatted by Jack and others, before they moved into No 17 -- "The first house we moved into completely ran down... Then the guy* running the support group handed us the keys to the house next door, the one you saw in the paper which said the squatters take over. And he said, move; you're in a bad house. Move into this nice house." (*i think Jack told me it was Tony Pattison who gave him the keys)
incidently i came across Tony again a couple of times -- indirectly in the early 80s via his brother who was living up in Lincolnshire, and directly in 1991, when we were both working at CLHAS, a Central London housing and resettlement coop -- but he developed serious eye problems and was facing the possibility of blindness last i heard, which is somewhat ironic as he was in the process of writing (or preparing to write) a book on Turlough O'Carolan, the last of the great traditional travelling Irish harpist/composers, who died in 1738 (and who was also blind)
Last edited by Weed on Sat Dec 27, 2008 11:16 pm, edited 1 time in total.
- Chris S-S
- Site Admin
- Posts: 138
- Joined: Wed Mar 05, 2008 8:43 pm
- antispam: I am Not
- Location: Hampton Court UK
GrosvenorRd Layout
Weed: I think you are confusing the Cabbage Patch and the Albany
Dominic: Thanks for the email and for the mugshots etc. good job.
I am suffering a cold and sore throat at the moment, I reckon my body knows when it hasn't got to go to work for a few days.
Dominic: Thanks for the email and for the mugshots etc. good job.
I am suffering a cold and sore throat at the moment, I reckon my body knows when it hasn't got to go to work for a few days.
Chris Selwyn-Smith
GrosvenorRd Layout
whoops... how our memories let us down
thanks Chris -- i stand corrected -- sorry for any confusion
thanks Chris -- i stand corrected -- sorry for any confusion
- Joviale
- Site Admin
- Posts: 379
- Joined: Fri Mar 07, 2008 2:59 pm
- antispam: I am Not
- Location: provence
GrosvenorRd Layout
Wasn't there a kind of path going from london road to gr, after the squated houses? Or was it somewhere else, i remember vaguely a short cut but not exactly where it was. And where was the police station, i remember going to the back door in the middle of the night, asking for change to go and get milk at the milk machine (fancy that, a milk machine!). It was, along with n°7, the only place "open" at night!
It's weird because i went back there the summer before, when we had the reunion, but it was such an emotional moment i don't remember much! I suppose it's because i hadn't been back there, contrary to most of you who still live in the area.
We did drive past it once with little chris, about ten years ago but i couldn't bring myself to look too closely...
It's weird because i went back there the summer before, when we had the reunion, but it was such an emotional moment i don't remember much! I suppose it's because i hadn't been back there, contrary to most of you who still live in the area.
We did drive past it once with little chris, about ten years ago but i couldn't bring myself to look too closely...
If i can't dance to it, it's not my revolution
- Chris S-S
- Site Admin
- Posts: 138
- Joined: Wed Mar 05, 2008 8:43 pm
- antispam: I am Not
- Location: Hampton Court UK
GRd Layout
There was a route through via the Cabbage Patch car park but I can't remember if one ended up at the back of No,8 or 10
Chris Selwyn-Smith
- Joviale
- Site Admin
- Posts: 379
- Joined: Fri Mar 07, 2008 2:59 pm
- antispam: I am Not
- Location: provence
GrosvenorRd Layout
I'm thinking more of a kind of alleyway (spelling?) that we used as a short cut to the bus stop, going to richmond. Could it be after n° 16? It might still be there so if someone passes through twickers...
If i can't dance to it, it's not my revolution
- Joviale
- Site Admin
- Posts: 379
- Joined: Fri Mar 07, 2008 2:59 pm
- antispam: I am Not
- Location: provence
GrosvenorRd Layout
There's a map of the area there:
http://www28.mappy.com/sidfoMVxu7HljHMn ... 7&x=31&y=5
http://www28.mappy.com/sidfoMVxu7HljHMn ... 7&x=31&y=5
If i can't dance to it, it's not my revolution
Re: GrosvenorRd Layout
Here's a link to the satellite map. - Have fun.
http://maps.google.com/maps?f=q&hl=en&g ... 8&t=h&z=13
http://maps.google.com/maps?f=q&hl=en&g ... 8&t=h&z=13
